当前位置:首页 >> 刀闸阀

刀闸阀 Knife gate valve

按产品分类分:刀闸阀球阀闸门闸阀截止阀蝶阀止回阀眼镜阀其他

按产品用途分:化工水处理煤电厂食品造纸石油展区

电液动刀形闸阀
  • 电液动刀形闸阀

产品名称:电液动刀形闸阀

产品说明:

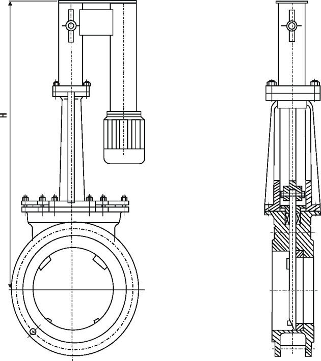
电液动刀形闸阀PZ73H

产品概述
该产品通过电液联动装置往复推位来控制阀门的开启和关闭,如配置传感器或数字显示装置,可进行远距离,高空的危险地区集中或程序控制,广泛应用于冶金、电力、煤炭、矿山、水利等行业,是一种应用性强的新型更新替代产品。

特点
◎机、电、液、仪一体化,实现现场控制,集中监控或自动控制。
◎无级调力,运行平稳,冲击力小,适用于较高压力场合。
◎节能,液压传动效率高达80%
◎阀门整体结构紧凑,体积小,无需液压泵站。
◎可控制任意阀位并可锁定。

 

公称通径Nominal through diameter506580100125150200
高度Height335363395465530630750

 

公称通径Nominal through diameter250300350400450500600
高度Height900112514601450160019002300

温馨提示:如果想了解更多信息,可以鼠标滑动文字区域下拉查看

手机登入网站请扫二维码 ↓